
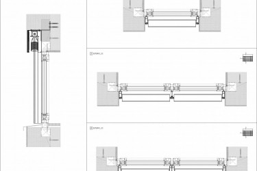
SZF/BX1
Żaluzja w wersji podtynkowej to doskonałe rozwiązanie do montażu w nowo powstających budynkach lub po dokonaniu odpowiednich modyfikacji w istniejących obiektach, zwłaszcza w obszarze nadproża. Dlatego warto rozważyć zastosowanie tego typu osłon już na etapie projektowania, co pozwoli uzyskać perfekcyjny efekt i integrację z architekturą wnętrza.
Kaseta osłonowa, wykonana z ekstrudowanego aluminium, została zaprojektowana z myślą o możliwości obróbki tynkarskiej, która może być dostosowana do wykorzystania dowolnego materiału wykończeniowego.
System oferuje również dedykowane prowadnice, specjalnie przystosowane do montażu w konstrukcji zabudowy. Maksymalne wymiary, jakie można osiągnąć, wynoszą 4500 x 4000 mm, co pozwala na dostosowanie żaluzji podtynkowej do różnorodnych potrzeb i pomieszczeń.
Wybór żaluzji podtynkowej to gwarancja estetycznego wykończenia oraz możliwości skonfigurowania jej zgodnie z indywidualnymi preferencjami i stylem wnętrza.
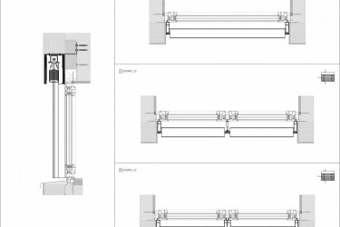
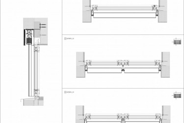
Możliwość zabudowy
Ściana 2 warstwowa:






